Коммерческая недвижимость у моря в Алании, Авсаллар
Коммерческая недвижимость, расположенная в районе Авсаллар, Алании, популярном туристическом направлении среди иностранцев, отличается развитой инфраструктурой и близостью к пляжам.
Коммерческая недвижимость на продажу в Алании находится в 100 метрах от рынка, аптеки, центра семейной медицины и ресторанов, в 1 км от моря, в 20 км от центра Алании и в 60 км от аэропорта Газипаша.
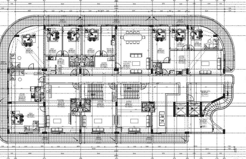
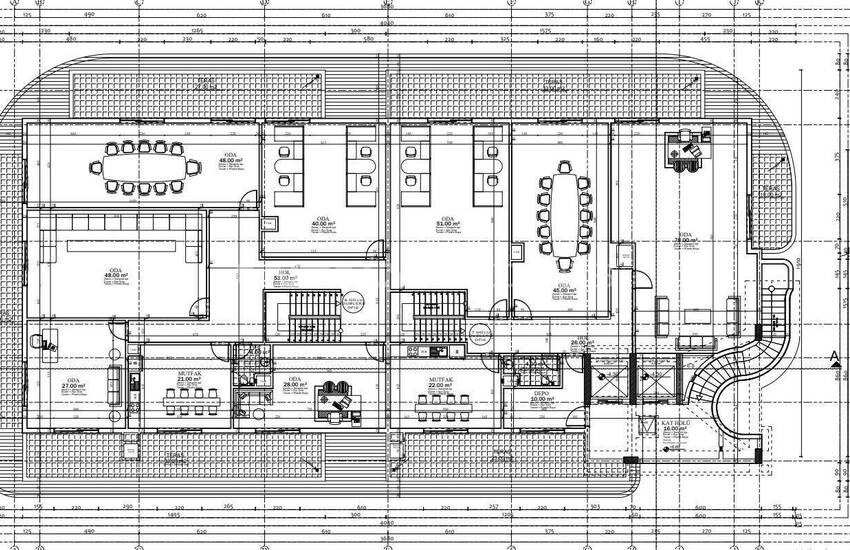
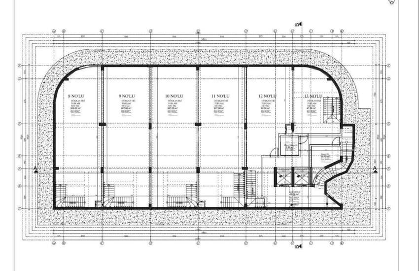
Бизнес-центр, построенный на общей площади 5994 кв. м, состоит из 3 блоков. Блок C имеет крытую парковку на 45 машиномест в подвале. Бизнес-центр, в котором расположены 21 магазин и 26 офисов, отличается современным внешним видом. Магазины и офисы предлагаются к продаже в различных размерах и с разной планировкой.











































